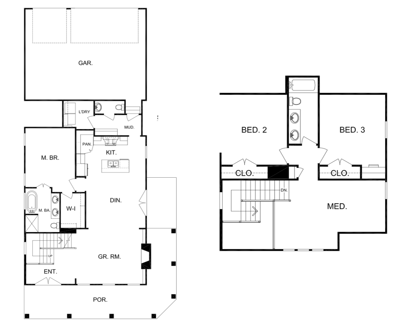
Bellah HomesNorthampton - 1.5 Story1942 sq.ft. | 3 beds | 2 baths 1 half bathClick here to view the Northampton Plan. View fullsize View fullsize View fullsize View fullsize View fullsize View fullsize View fullsize